East London Church
East London Church
East London Church
East London Church
East London Church



Overview
Overview
Overview
Set within a highly sensitive conservation context, this gentle extension to a historic church is designed to respond to both contemporary community needs and the deep, layered heritage of its setting.
Surrounded by a rich tapestry of historic architecture, the design approach is fundamentally rooted in contextual respect. Rather than imposing a competing statement, the intervention prioritises sensitive place-making, acting as a considerate neighbour to the existing heritage assets.
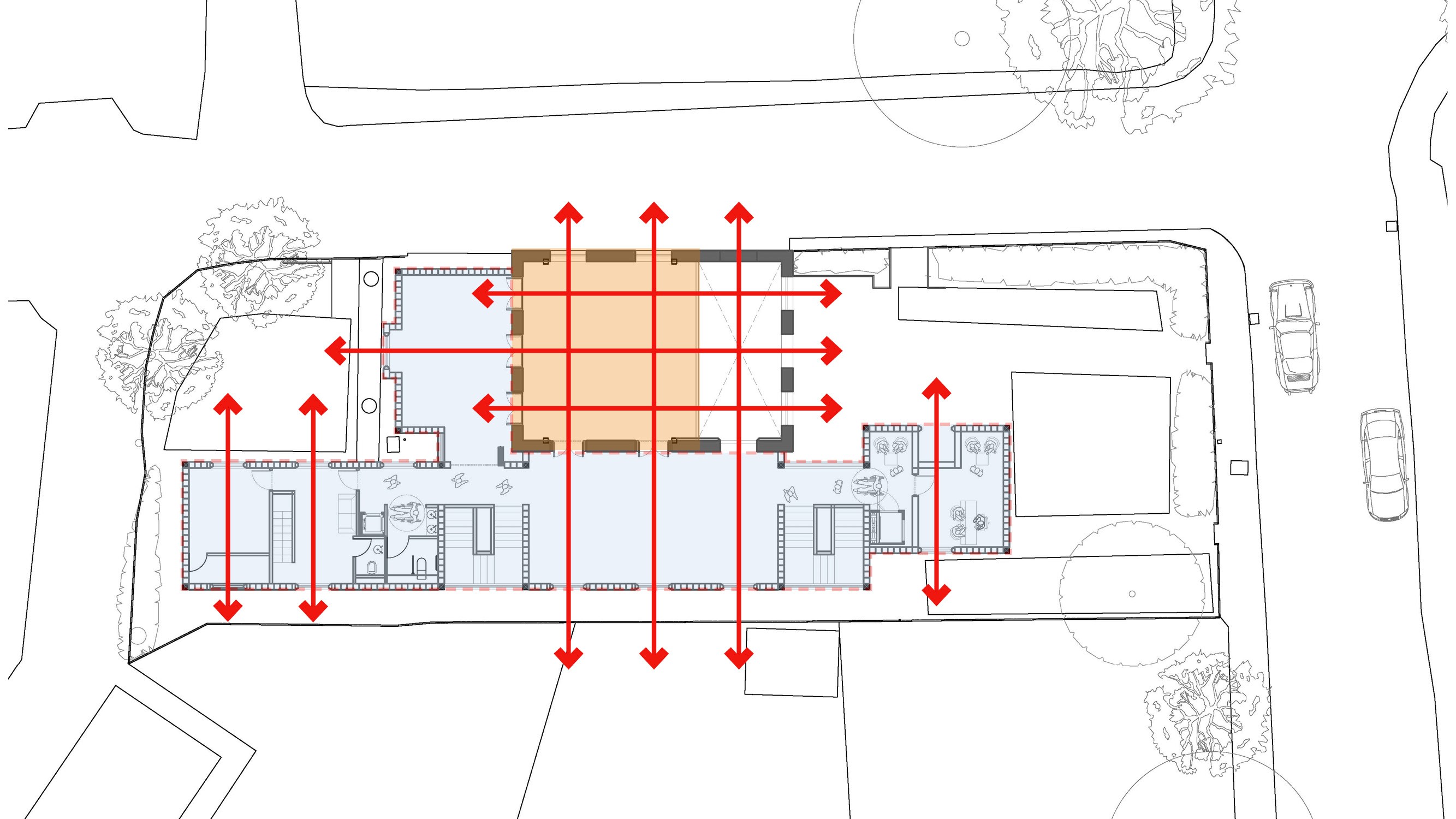
The architectural language is deliberately quiet, humble, and responsive. By carefully aligning the massing and fenestration with the linear rhythm of the original church windows, the new addition establishes a subtle dialogue. It speaks with the historic fabric, rather than over it, ensuring the original listed structure retains its rightful prominence within the streetscape.
In both plan and elevation, this harmonious relationship becomes clear. The old and the new operate not as contrasting elements, but as collaborative partners in a continuous architectural narrative—delivering a high-quality, functional space that honours the past while purposefully serving the present.
Set within a highly sensitive conservation context, this gentle extension to a historic church is designed to respond to both contemporary community needs and the deep, layered heritage of its setting.
Surrounded by a rich tapestry of historic architecture, the design approach is fundamentally rooted in contextual respect. Rather than imposing a competing statement, the intervention prioritises sensitive place-making, acting as a considerate neighbour to the existing heritage assets.
The architectural language is deliberately quiet, humble, and responsive. By carefully aligning the massing and fenestration with the linear rhythm of the original church windows, the new addition establishes a subtle dialogue. It speaks with the historic fabric, rather than over it, ensuring the original listed structure retains its rightful prominence within the streetscape.
In both plan and elevation, this harmonious relationship becomes clear. The old and the new operate not as contrasting elements, but as collaborative partners in a continuous architectural narrative—delivering a high-quality, functional space that honours the past while purposefully serving the present.
Visuals
Visuals
Visuals
Site Map
Site Map
Site Map

Concepts
Concepts
Concepts






